- Details
- Kategorie: Allgemein
{multithumb} Das 26. Schierwaldenrather Adventskonzert war wieder gut besucht.
Der Musikverein hat mit Unterstützung von Heiner Oepen an der Kirchenorgel und unseren Jüngsten ein weihnachtliches Programm mit Ausflügen in die irische Folkmusik und Pop und Rock auf die Beine gestellt.
Die Blockflötenkinder spielten diesmal keine Blockflöte, sondern gaben ein Lied "Der Weihnachtsmann ist ein toller Kerl" mit Unterstützung von Richard Esser und Carsten Deußen zum Besten:
Die Jugend überzeugte mit drei Stücken: Alle Jahre wieder, Das einsame Glöckchen und Schlafe mein Prinzchen:
Das Orchester spannte einen weihnachtlichen Bogen mit Ausflügen ins Konzertante mit O Sanctissima, Kilkenny Rhapsody, Roar, Saxophone Dreams, Coldplay Medley, I do It for You, Feliz Navidad und natürlich, wie jedes Jahr zum Mitsingen: Oh, du fröhliche.
Ein ganz besonderer Dank an Toni Hilgers, den Dirigenten, der den Musikverein immer wieder motiviert und kontinuierlich gefordert hat.
Danke an Heiner Oepen, der zeigte, was alles in userer Kirchenorgel drinsteckt. Danke auch an Kathrin Hilgers für ihre stimmige und manchmal nachdenklich machende Moderation.
Und natürlich der größte Dank an alle Besucher des Konzertes.
- Details
- Kategorie: Allgemein
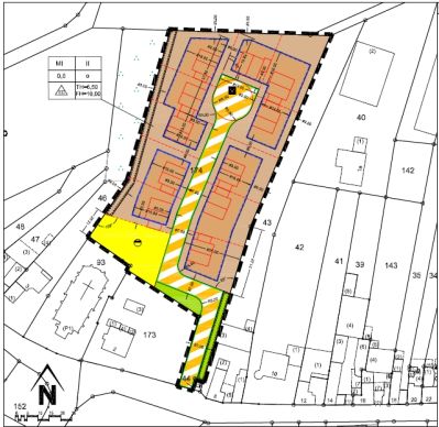
{multithumb}Für eine Fläche hinter der Kirche in Schierwaldenrath, welche seitens der EGG Entwicklungsgesellschaft Gangelt GmbH erworben wurde, ist das Bauleitplanverfahren mit dem Aufstellungsbeschluss eingeleitet worden. Sollte es im Bauleitplanverfahren zu keinen Problemen kommen, ist mit der Rechtskraft des Planes nach den Sommerferien 2015 zu rechnen. Im Anschluss hieran kann mit der Erschließung begonnen werden, sodass Ende 2015/Anfang 2016 mit den ersten Bauten begonnen werden kann.
- Details
- Kategorie: Allgemein
{multithumb}Tannenbaum aufgestellt
Die Ortsvereine haben auch dieses Jahr wieder einen Tannenbaum an der Maar aufgestellt.
Vielen Dank an den Spender dieses Prachtexemplars (Heinz-Josef Schlicher und Rieke für die Päckchen) und an alle Helfer!
Und grad als er am schönsten war wurde er abgebaut (24.01.2015). Danke an die Helfer (Heinz-Josef, Cliff, Ralf und Hans)
(rbe 150125)
- Details
- Kategorie: Allgemein
{multithumb}Das diesjährige Kirchencafe am Sonntag, 26. Oktober 2014 war ein großartiges Erlebnis.
Hauptsächliche Anlässe waren der Jahrestag der Einsegnung der ersten Pfarrkirche vor 125 Jahren und die Erinnerung an die Zerstörung der einst so eindrucksvollen Kirche gegen Ende des zweiten Weltkriegs vor 70 Jahren. Erich Peters hat unsere ehemalige Pfarrkirche in erstaunlichem Detailreichtum in einem Modell im Maßstab 1:50 nachgebaut. Dieses Modell wurde an diesem Sonntag erstmalig ausgestellt und zeigt, was unser Ort durch die sinnlosen Kriege verloren hat.
Die Kirche war bereits ab 9:00 Uhr geöffnet und erste Gäste konnten bereits die Modelle der alten und aktuellen Kirche und viele andere Ausstellungstücke bewundern. Die Kirche war bis auf den letzten Platz gefüllt. Der feierlichen Wortgottesdienst begann um 10:30 Uhr. Danach gab es für alle Kirchenbesucher Kaffee und belegte Brötchen. Es gab Gelegenheit zu vielen interssanten Gesprächen.
Darüber hinaus präsentierte die Autorengemeinschaft Erich Peters, Gerd Ezilius und Siggi Schlebusch ihr Buch
St. Anna Schierwaldenrath, Pfarre und Kirche schrieben Geschicht durch den Krieg
Eine sinnlose Zerstörung - eine Mahnung zum Frieden!
Neben einem Bericht zur Sprengung unserer alten Pfarrkirche gegen Kriegsende durch deutsche Truppen beschreibt das Buch auch die Ereignisse in Schierwaldenrath in den beiden Weltkriegen, die zu einer fast vollständigen Zerstörung unseres Ortes geführt haben. Es erinnert ebenfalls an alle Schierwaldenrather, die in den beiden Weltkriegen ihr Leben lassen mussten. Insbesondere wird auf die Bombardierung der Selfkantbahn gegen Ende des zweiten Weltkrieges eingegangen, bei der viele Mensche ihr Leben verloren.
Beim Kirchencafe konnte dieses Buch käuflich erworben werden und war sehr schnell ausverkauft. Es kann beim Autorentrio nachbestellt werden.
Weitere Bilder in der Bildergalerie: Link
- Details
- Kategorie: Allgemein
02.10.2014
DAS PROJEKT IST AKUT GEFÄHRDET!
Beim Workshop am 2. Oktober waren neben den Initiatoren und dem Architekten gerade mal zwei Eltern junger Kinder dabei. Das reicht nicht, um die Gemeinde von unseren Ideen zu überzeugen.
Es soll nun eine letzte Aktion gestartet werden, bei der nochmals Wurfzettel an alle Haushalte des Ortes verteilt werden, mit der dringenden Bitte, eine breite Bürgerbeteiligung für die Erstellung und den Betrieb zu erreichen.
Bei den Initiatoren und dem Ortsring liegen Listen bereit, in denen ihr eure Unterstützung für den Bau und den Betrieb des Mehrgenerationenplatzes bekunden könnt.
Bitte erklärt eure Bereitschaft, tatkräftig zu unterstützen. Ein Baubeginn ist in 2015 möglich.
Sagt bitte auch, was ihr machen könnt:
- Hilfe bei der Planung
- Beschaffung von Baumertial
- Handwerkliche Fertigkeiten
- Sonstige Hilfe
- ...
Eine genauere Aufteilung und Zuordnung kann erst nach einer erfolgten Detailplanung vorgenommen werden.
OHNE EURE UNTERSTÜTZUNG KÖNNEN WIR DAS FÜR UNSERE KINDER UND UNSEREN ORT WICHTIGE PROJEKT NICHT DURCHSETZEN!
WIR BRAUCHEN EINE AUSREICHENDE UNTERSTÜTZUNG FÜR DEN BAU UND DEN BETRIEB DES PLATZES.
DIE WURFSENDUNG MIT EINEM ABSCHNITT FÜR EINE RÜCKMELDUNG WURDE VERTEILT.
DIE FRIST FÜR EINE EINTRAGUNG LÄUFT AM 31. OKTOBER 2014 AB.
Weitere Information und die Möglichkeit, euch in die Unterstützungsliste einzutragen erhaltet ihr sehr gerne über die Initiatoren und über
Hier die aktuelle Skizze mit den Ideen der Bevölkerung und des Architekten:
23.09.2014
Am 2. Oktober 2014, 19:30 Uhr findet ein weiterer Planungworkshop in der alten Schule statt. Interessierte sind herzlich eingeladen, sich einzubringen. Die Liste für eine aktive Unterstützung bei Herstellung und Unterhalt des Mehrgenerationplatzes wird wieder ausliegen. Bislang haben sich neun Bürger hier eingetragen.
Um unser ehrgeiziges Ziel erreichen zu können brauchen wir eine hier breite Basis. Bitte tragt euch in die Unterstützungsliste ein und helft, das Projekt umzusetzen und einen langfristigen Betrieb des Mehrgenerationenplatzes zu gewährleisten.
10.09.2014
Da nicht alle am Dorffest teilnehmen konnten, wird in Kürze ein weiterer Workshop organisiert mit der Möglichkeit, sich als aktiver Unterstützer in die Liste einzutragen.
05.09.2014
Der überarbeitete Entwurf wurde dem Bürgermeister Tholen vorgestellt. Dieser hat positiv darauf reagiert, betonte jedoch, dass ein solches Konzept nur mit reger Beteiligung der Bürger, speziell von Eltern) realisierbar ist und zu unterhalten sei. Das heißt, wir brauchen eure Unterstützung für den Bau und den Betrieb des Mehrgenerationsplatzes. Nur dann können wir das ehrgeizige Projekt wie geplant angehen. Zum Dorffest wird der aktuelle Entwurf präsentiert. Ebenfalls wird eine Liste aushängen, in der sich Bürger eintragen sollten, die bereit sind, sich aktiv bei der Einrichtung und dem Unterhalt des Platzes zu beteiligen.
20.08.2014
Nach dem ersten Workshop zur Gestaltung des Platzes hinter der alten Schule fand am 19. August 2014 der zweite statt. Der Architekt Jo Meyer hat die Anregungen der Dorfbevölkerung – speziell die der jungen Eltern – aufgenommen und in einer ersten Skizze präsentiert.
Gut gemacht! So war das einhellige Urteil der Eltern und Initiatoren des Projektes. Viel Raum für Abenteuer und Phantasie für jung und alt. Aktive Ecken, weitgehender Einbezug der vorhandenen Substanz und Platz zum Ausruhen und Klönen.
Es wurde lebhaft diskutiert und eine Menge neuer Anregungen musste sich Jo Meyer notieren. Die Skizze wird nun überarbeitet und der Gemeinde vorgelegt. Hier wird entschieden, was wann wie realisiert werden kann. Im Anschluss wird dann ein Umsetzungkonzept erstellt. Möglichst viel soll in Eigenleistung erstellt werden.
Information und weitere und Anregungen gerne über den Ortsring Schierwaldenrath (
- Details
- Kategorie: Allgemein
{multithumb}
Nachbarn der oberen Maarstraße haben am Freitag, 26.09.2014, knapp 4000 Blumenzwiebel auf der neu gestalteten Verkehrsinsel gesetzt.
Narzissen, Schneeglöckchen und vieles mehr wurden unter der fachlichen Leitung von Wilfried Laumen eingesetzt.
- Details
- Kategorie: Allgemein
{multithumb}
Am 6. und 7. September fand in unserem Ort an der alten Schule das diesjährige Dorffest statt. Veranstalter war die St. Joachims-Schützenbruderschaft, die ein tolles Programm aufgestellt hatte.
Am Samstag Abend ging es beim gut besuchten Dämmerschoppen mit Livemusik des Oldtimercorps und der "Dorf"-Band Thirteen Steps To Cellar und der Vorentscheidung des Kickerturniers.
Am Sonntag nach gemeinsamen Kirchgang der Frühschoppen mit Prinzenvogelschuss. Leider waren die Bewerber hier sehr rar, so dass es keinen neuen Prinzen zu verzeichnen gab.
Nachmittags stand der Königsvogelschuss an. Nach nicht mal einer Stunde hieß es: Wir haben ein neues Schützenkönigspaar!
Herzlichen Glückwunsch an Josef und Marlies Paulzen.
Das Kickerturnier gewann die Mannschaft der Spielvereinigung Birgden/Langbroich/ Schierwaldenrath, dicht gefolgt von der des Musikvereins.
Mit Kaffeekonzerten des Spielmannzugs und des Musikvereins und der Verlosung klang das Dorffest bei bestem Wetter aus. Die Losnummern, zu denen die Preise nicht sofort abgeholt wurden, werden später veröffentlicht (Danke dem Spender für den gewonnen Kuchen ;-) ).
Danke an den Ausrichter und alle Besucher. Wir hoffen, alle hatten viel Spaß und freuen sich mit uns auf das nächste Dorffest.
- Details
- Kategorie: Allgemein
Pünktlich zum Kindergartenjahr 2014 – 2015 öffnet der Kindergarten Regenbogen e.V. seine neuen Pforten. Die Arbeit hat sich gelohnt, heller und mehr dringend benötigter Platz für Kinder und Personal.
Das Team des Kindergartens lädt ein zur bunten Eröffnung und zum Tag der offenen Tür zwischen „Alte Schule“ und Kindergarten am Samstag, 13. September 2014 ab 11:00 Uhr bis ca. 17:00 Uhr.
Ein vielseitiges Programm mit Musical, Kaffeekonzert des Spielmannszuges und des Musikvereins und vielen anderen Aktionen wurde auf die Beine gestellt. Auch für das leibliche Wohl wird gesorgt: Leckeres vom Grill und Kaffee und Kuchen sind reichlich vorhanden.
Das Team freut sich über jeden Besucher.
http://www.kiga-schierwaldenenrath.de/
- Details
- Kategorie: Allgemein
Der Ortsring arbeitet weiter an der Überarbeitung des Internetauftritts unseres Dorfes. Dabei sind wir auf die Hilfe unserer Mitbürger und der Vereine angewiesen. Für Bilder, Texte, Geschichten, Historisches, kurz alles, was hier präsentiert werden kann, sind wir dankbar. Kontakt: